Ir al contenido
LUIS RIDAO – ARQUITECTO
estudio de arquitectura
Menú
Inicio
Acerca de
Reconocimientos
Publicaciones
Colaboraciones
Universidad
Listado de proyectos
Selección de obras construidas
Contacto
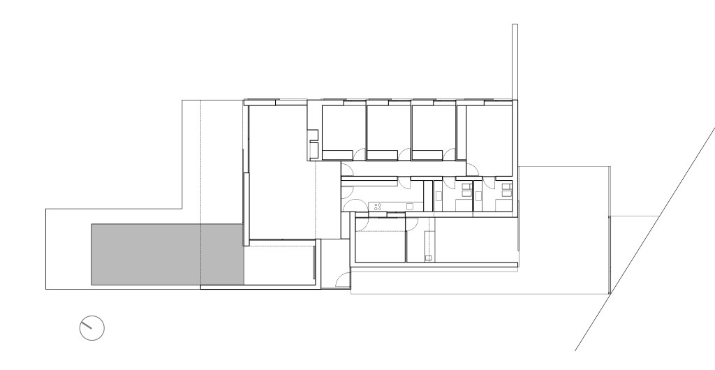
Casa EL68
Carmona (Sevilla) / 2009
Fotografías: Jesús Granada
Relacionado
Navegación de entradas
Guardería de Antas
Centro de Día en Los Gallardos
LUIS RIDAO - ARQUITECTO
Regístrate
Iniciar sesión
Copiar enlace corto
Denunciar este contenido
Gestionar las suscripciones
Cargando comentarios...
Escribe un comentario...
Correo electrónico (Obligatorio)
Nombre (Obligatorio)
Web